湖北省政府采购竞争性谈判项目
来源:审核人员 时间:2015-04-13 浏览:
谈 判 文 件
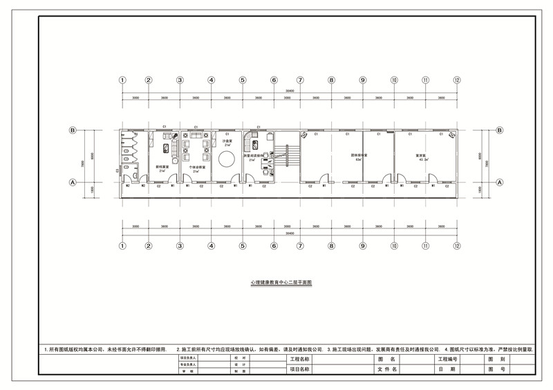
项目名称:湖北生物科技职业学院心理咨询中心装修工程
采购单位:湖北生物科技职业学院
二零一五年四月
第一章 投标邀请
根据省政府采购办(鄂财采认【2015】-02674号)政府采购执行确认书要求,湖北生物科技职业学院心理健康咨询中心装修工程采取竞争性谈判方式进行采购。现邀请满足以下条件的单位按本竞争性谈判文件的要求投标:
竞标人资格要求:
1.投标人必须符合《政府采购法》第二十二条规定的条件。
2、供应商必须为中华人民共和国境内注册取得相应经营范围工商营业执照,具有独立法人资格,能独立承担民事责任的经济实体。
3、供应商必须具备建筑装饰装修工程专业资质;
4、外地企业必须有来鄂备案登记证,且在武汉有长期固定的分支机构(以营业执照为准)。
5.在经营过程中信誉良好,无违法经营和不正当竞争行为的记录。
6.本项目不接受联合体投标
湖北生物科技职业学院后勤服务中心
2015年4月13日
第二章 投标须知及投标须知前附表
一、投标须知前附表
|
项 号 |
条款 号 |
内 容 |
说明与要求 |
|
1 |
1.1 |
工程名称 |
湖北生物科技职业学院心理健康咨询中心装修工程 |
|
2 |
1.1 |
建设地点 |
校内 |
|
3 |
1.1 |
建设规模 |
约19万元 |
|
4 |
1.1 |
承包方式 |
包工包料 |
|
5 |
1.1 |
质量标准 |
合格 |
|
6 |
2.1 |
招标范围 |
心理健康咨询中心装修工程 |
|
7 |
2.2 |
工期要求 |
15日历天 |
|
8 |
3.1 |
资金来源 |
自行支付 |
|
9 |
4.1 |
投标人资质等级要求 |
建筑装饰装修工程资格 |
|
10 |
4.3 |
资格审查方式 |
资格预审 |
|
11 |
12.1 |
工程报价方式 |
工程量清单 |
续表
|
项 号 |
条款 号 |
内 容 |
说明与要求 |
|
12 |
15.1 |
投标有效期 |
为:90日历天(从投标截止之日算起) |
|
13 |
16.1 |
投标保证金 |
无 |
|
14 |
5.1 |
踏勘现场 |
投标单位自行安排 |
|
15 |
17.1 |
安全生产管理目标 |
合格 |
|
文明施工管理目标 |
合格 | ||
|
16 |
18.1 |
投标文件份数 |
一式二份,正本副本各一份 |
|
17 |
21.1 |
投标文件提交地点 及截止时间 |
收件人:湖北生物科技职业学院后勤管理服务中心 地点:洪山区狮子山街野芷湖1号 截止时间:2015年4月 17 日下午2:00 联系人:杨老师 电话 027-59814348 |
|
18 |
24.1 |
开标时间 |
开标时间:2015年4月 17 日上午2:30 地点:湖北生物科技职业学院后勤管理服务中心 |
|
19 |
29.3 |
定标原则 |
排名第一的为中标人 |
|
20 |
33.3 |
履约担保金额 |
甲乙双方协商 |
第三章 投标报价
一、本工程的投标报价,工程套用《湖北省房屋修缮工程预算定额统一基价表》(2009);《湖北省房屋建筑与装饰工程消耗量定额及基价表》(2013),《湖北省通用安装工程消耗量定额及单位估价表》(2013),《湖北省建筑安装工程费用定额》(2013)执行相应的取费标准和人工费调增;材料价格按2014年6月武汉《工程造价》市场信息价计取且施工期间及以后结算不再调差价。
二、投标报价为投标人在投标文件中提出的各项支付金额的总和。
三、本次招标的中标价即为合同包干总价。结算时将不再予以调整,若投标单位认为图纸中有不完善的地方,或者现场踏勘时发现有需要调整装修方案时,均应在投标报价时或谈判时予以澄清,并包含在最终报价内。结算时不再调整总价。
四、本招标工程的施工地点为本须知前附表第2项所述,除非合同中另有规定,投标人在报价中所报的单价和合价,以及投标报价汇总表中的价格均包括完成该工程项目的成本、利润、税金、开办费、技术措施费、大型机械进出场费、风险费、政策性文件规定费用等所有费用。
五、投标人可先到工地踏勘以充分了解工地位置、情况、道路、储存空间、装卸限制及任何其他足以影响承包价的情况,任何因忽视或误解工地情况而导致的索赔或工期延长申请将不被批准。
六、本工程投标报价采用的币种为 人民币
第三章 评标
谈判小组与评标
一、 谈判小组由招标人依法组建,负责评标活动。
二、本工程谈判小组由3人组成,学院纪委、财务、后勤各一人。
三、谈判小组与参与本次谈判的投标人逐一谈判后,要求所有参加谈判的投标人在规定时间内进行最后报价和承诺。
四、谈判小组综合评审后,根据符合采购需求、质量和服务相等且报价最低的原则,推荐成交供应商候选人并标明排序,采购人在成交候选人中依序确定成交供应商。
五、文件计算错误的处理。投标文件中发生的计算错误按以下原则处理:
1、如果数字表示的金额与用文字表示的金额不一致时,应以文字表示的金额为准;
2、其他计算错误由投标人自己承担责任。
六、投标文件的评审、比较、定标和否决
1、谈判小组仅对在实质上响应谈判文件要求的合格投标文件进行谈判。
2、谈判小组于投标人进行谈判后,向招标人提出书面评标报告,并推荐第一名为中标候选人。
3、谈判小组经谈判,认为所有投标都不符合谈判文件要求的,可以否决所有投标。所有投标被否决后,招标人将依法重新招标。
第四章 工程量清单
一、土建部分
1、走道、楼梯室内天棚轻钢龙骨600×600石膏板吊顶,278.3M2
2、走道、楼梯、室内水泥砂浆找平,铺PVC地板胶,295M2
3、二层走道封彩铝窗,71.3M2;固定10mm厚钢化玻璃39.6M2,采用80×80×5的方管为立柱, 120M;40×40×3方管,24M;喷涂白瓷漆,61M2
4、进门厅采用600×600玻化砖,7M2
5、铲除底层,刮腻子灰,内墙乳胶漆,225M2
6、刮外墙灰,涂刷外墙漆,160M2
7、彩钢板喷色漆,185.5M2
8、窗帘制作安装,3.5*2.8*9个,39.6*2.8,1.2*2*9个
9、窗帘盒制作、油漆, 0.5*83M
10、铝合金制作活动隔断,6M*2.8M
11、12MM钢化玻璃梭门,3.3M*2.7M,拉手2套
二、水电部分
1、二厂铜塑线,4MM2 210M;2.5MM2 480M
2、联塑线槽 14×24 80M;PVCD16线管,160M
3、TCL牌空插2个;五孔插座37个;二开2个;一开9个;网插9个;格栅灯18套,平灯头4套
4、卫生间水维修 角阀6个;软管6根;水嘴1个;脸盆龙头2套

上一条:培训食堂对外承包招标公告

